Channel forming die, Amada Press Brake Tooling
Need specific tooling that’s not listed? Leave your contact details, and our experts will assist you with a customized technical solution, at no additional cost.
-
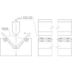
Channel forming die set 1 and set 2 are used to form channels with an inside web of 3/4“or less. Set 2 is suitable for sheets requiring a high flatness. Set 3 is used to create U-shaped channels.
Inquiry -
When the material thickness is 1-1/2 to 2 times or greater, the built in radius of the channel forming die set 4 may cause spring back, which will then form a channel.
Set 5 is applicable for channels where the inside web is greater than 3/4”. This die set features a pressure pad to ensure the flatness of the inside web.
Inquiry -
The die set 6 forms a semi hat channel at the edge of sheets, which consists of a release wedge and stripper to ensure easy part removal.
Die sets 7 and 8 are designed to form hat channels. Set 7 can form four 90 degree bends in one hit and set 8 can form an open hat channel in one hit.
Inquiry









